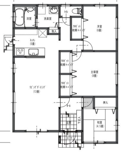
S05 26坪 3LDK
1,390
購入時の総合計費用
- 坪数
- 26坪
- 建物価格
- 1,390万円
- 合計
- 1,390万円
ローンシミュレーション
- 金利
- 変動金利0.925%
- 返済期間
- 35年
- 月々の支払い
- 38,000円ボーナス支払い無し
※別途付帯工事・諸経費がかかる場合があります。
※外観パースはイメージです。一部オプションを含むものがございます。
1,390
※別途付帯工事・諸経費がかかる場合があります。
※外観パースはイメージです。一部オプションを含むものがございます。

スタイリッシュハウスのことが
この1冊でわかる!